Delivering a smooth grocery pick-up service
Collect & Go has been around for twenty years. Chances are you've used it yourself.
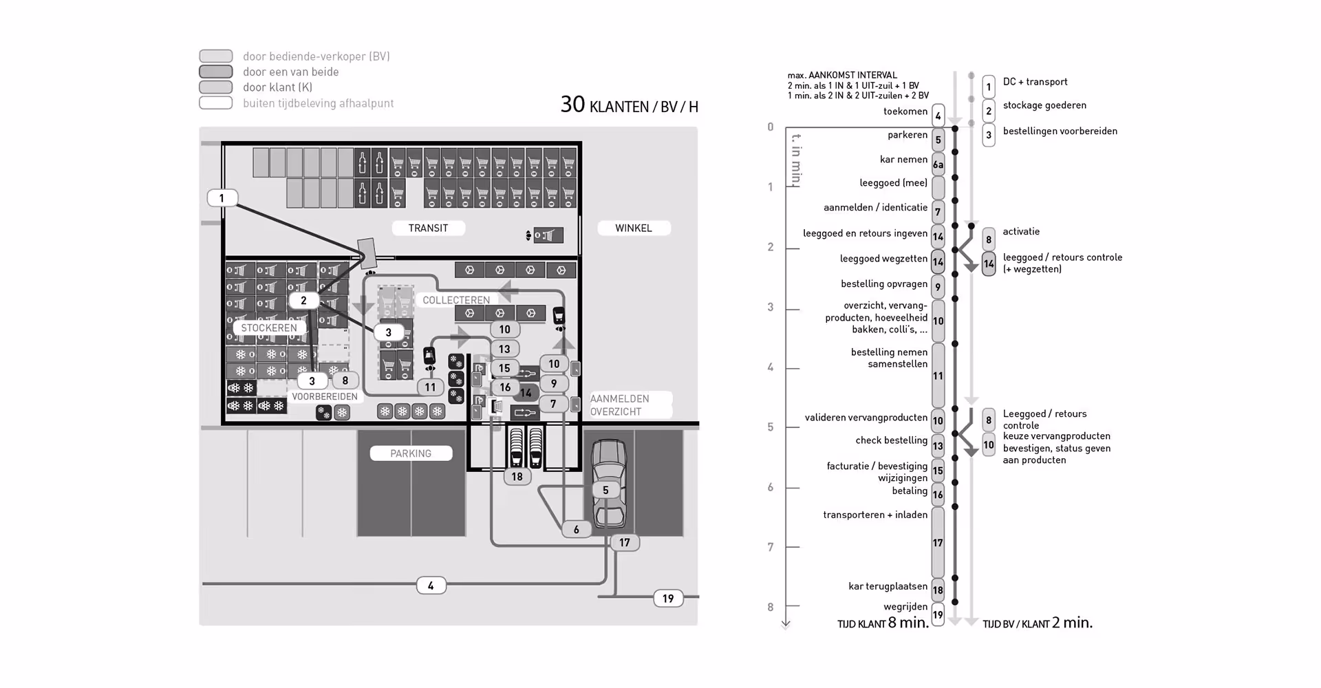
In 2015, Colruyt Group asked us to redefine the grocery pick-up service Collect & Go.
We developed the spatial layout, interaction modules and signage from scratch. From paper prototype to fully functional sites. The result: a pick-up point that is easy to understand, fast to use, and smooth from arrival to exit.







Let's talk
Reach out today and let us help you propel your business with bold human-centric design














